Description

🏡 Contemporary Living, Redefined – Mambourin

1239 Masters Crescent | 7-Star Energy Rated | Elegant Design. Everyday Functionality.

Total Price: $631,900
Land Size: 169 m² (Approx.)
Home Size: 23 Squares (Approx.)
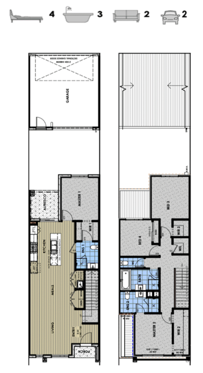
Bedrooms: 4  Bathrooms: 3  Garage: Double

🌿 Smart Design Meets Refined Comfort

Experience a home that combines architectural precision, family practicality, and modern elegance.
This four-bedroom, three-bathroom residence has been thoughtfully designed to make the most of every square metre — delivering light-filled interiors, luxury finishes, and flexible living zones.
With a 7-Star Energy Rating, it’s not just stylish — it’s sustainable, comfortable, and future-focused.

🏠 Interior Highlights – Beautifully Crafted and Functional

Designer kitchen with 40 mm stone benchtops, waterfall island & soft-close cabinetry

900 mm stainless-steel European appliances (oven, cooktop, rangehood & dishwasher)

Walk-in butler’s pantry providing exceptional storage and preparation space

Open-plan living and dining areas flowing seamlessly to the outdoor alfresco

Private master suite with walk-in robe & ensuite featuring dual vanities and full-height tiles

Three secondary bedrooms, all with mirrored built-in robes and plush carpet

Three full bathrooms with contemporary fittings and chrome tapware

Formal lounge / media room offering a private retreat or entertainment zone

Study nook / home office designed for flexibility and modern living

Hybrid timber flooring in main living areas & premium carpet in bedrooms

High 2590 mm ceilings enhancing openness and natural light

LED downlights throughout with feature pendant lighting over the kitchen island

Ducted heating & split-system cooling for year-round comfort

Double-glazed windows & insulation ensuring quiet and energy-efficient living

7-Star Energy Efficient Design – crafted for sustainability and long-term comfort

🌳 Outdoor Features – Effortless Beauty and Practical Appeal

Architectural façade featuring render and cladding for striking curb appeal

Colorbond roof & remote-controlled double garage with internal access

Exposed aggregate driveway & paved front walkway

Covered alfresco area ideal for outdoor entertaining or family dinners

Fully landscaped front and rear gardens with lawn, planting & decorative edging

Full boundary fencing & side gate access ensuring privacy and security

Letterbox, clothesline and TV antenna included

Rainwater tank connected to toilets and garden taps

NBN-ready for high-speed internet connectivity

Energy-efficient exterior LED lighting & water-saving fixtures

📋 Package Summary
Feature Details
Address 1239 Masters Crescent, Mambourin
Price $631,900 (Full Turnkey Package)
Land Size 169 m² (Approx.)
Home Size 23 Squares (Approx.)
Bedrooms 4
Bathrooms 3
Garage Double Lock-Up Garage
Energy Rating 7-Star Nationwide House Energy Rating
💎 Why You’ll Love This Home

Every feature of this residence has been designed to deliver convenience, comfort, and style.
From its designer kitchen and elegant bathrooms to its versatile living spaces, it’s a home that adapts to the way you live.
Smart, sophisticated, and beautifully efficient — a new benchmark in modern family living.

⚠️ Disclaimer

All information, images and descriptions are for marketing and illustrative purposes only and may be subject to change without notice.
The builder and developer reserve the right to modify materials, specifications and inclusions to equal or higher standards.
Final pricing, layout and inclusions may vary depending on site conditions, council requirements and developer guidelines.
Purchasers should verify all details independently before entering into a contract.


Features

  • Alarm System
  • Ensuite
  • Remote Garage Control
  • Outdoor Entertainment Area
  • Study
  • Gas Heating
  • Split System Air Conditioning
  • Broadband Connection
  • Built in Robes
  • Dishwasher
  • Rumpus Room


We aim to look after your end-to-end construction, development and selling needs. Contact us for more information.

Get In Touch

1 Market St 36th Floor,
San Francisco, CA 94105
United States