Description

🏡 Elegant Urban Living – Mambourin

1240 Masters Crescent | 7-Star Energy Rated | Contemporary Style. Superior Functionality.

Total Price: $631,900
Land Size: 173 m² (Approx.)
Home Size: 23 Squares (Approx.)
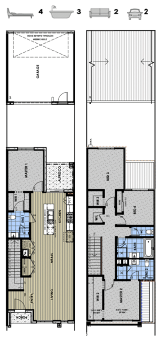
Bedrooms: 4  Bathrooms: 3  Garage: Double

🌿 Where Design Meets Everyday Luxury

This beautifully designed four-bedroom, three-bathroom home delivers the perfect balance of modern comfort, functional layout, and timeless design.
Ideal for families, professionals, or investors, it offers spacious living zones, high-quality finishes, and an energy-efficient structure that ensures comfort and sustainability all year round.

🏠 Interior Highlights – Stylish, Spacious, and Smart

Premium kitchen with 40 mm stone benchtops, waterfall edge & soft-close cabinetry

900 mm stainless-steel European appliances including oven, cooktop, rangehood & dishwasher

Walk-in butler’s pantry for added convenience and storage

Expansive open-plan living and dining area flowing seamlessly to the outdoor alfresco

Master bedroom suite featuring walk-in robe & luxurious ensuite with full-height tiles and twin vanities

Three additional bedrooms with mirrored built-in robes and soft premium carpet

Three full bathrooms with designer fittings, freestanding bath & chrome tapware

Dedicated lounge or study nook for flexible family use

Hybrid timber flooring throughout main living zones & luxury carpet to bedrooms

High 2590 mm ceilings amplifying light and openness

LED downlights throughout with feature pendants in key areas

Ducted heating & split-system cooling ensuring all-season comfort

Double-glazed windows & insulation for superior thermal performance

7-Star Energy Efficient Design for comfort, sustainability & reduced running costs

🌳 Outdoor Features – Designed for Modern Living

Architectural façade with render and cladding details for strong street presence

Colorbond roof & remote-controlled double garage with internal access

Exposed aggregate driveway & paved entry path

Covered alfresco area ideal for entertaining family and friends

Fully landscaped front and rear gardens with lawn, planting & decorative edging

Full boundary fencing & side gate access for privacy and security

Letterbox, clothesline and TV antenna included

Rainwater tank connected to toilets and garden taps

NBN-ready for high-speed internet

Energy-efficient exterior LED lighting & water-saving fixtures

📋 Package Summary
Feature Details
Address 1240 Masters Crescent, Mambourin
Price $631,900 (Full Turnkey Package)
Land Size 173 m² (Approx.)
Home Size 23 Squares (Approx.)
Bedrooms 4
Bathrooms 3
Garage Double Lock-Up Garage
Energy Rating 7-Star Nationwide House Energy Rating
💎 Why You’ll Love This Home

This home is a showcase of modern craftsmanship and efficient design — built for families who value elegance and practicality.
With its smart floor plan, stylish finishes and energy-conscious construction, it’s more than just a home — it’s a statement of modern living.
Effortless, elegant, and move-in ready — the perfect blend of comfort and sophistication.

⚠️ Disclaimer

All information, images and descriptions are for marketing and illustrative purposes only and may be subject to change without notice.
The builder and developer reserve the right to modify materials, specifications and inclusions to equal or higher standards.
Final pricing, layout and inclusions may vary depending on site conditions, council requirements and developer guidelines.
Purchasers should verify all details independently before entering into a contract.


Features

  • Alarm System
  • Ensuite
  • Remote Garage Control
  • Outdoor Entertainment Area
  • Study
  • Gas Heating
  • Split System Air Conditioning
  • Broadband Connection
  • Built in Robes
  • Dishwasher
  • Rumpus Room


We aim to look after your end-to-end construction, development and selling needs. Contact us for more information.

Get In Touch

1 Market St 36th Floor,
San Francisco, CA 94105
United States