Description

SOLD

This architecturally designed home will suit those wanting something out of the ordinary!

Located in the exclusive Park Lake Estate at the end of a quiet cul-de-sac, this stunning home is positioned to maximise the amazing views, allowing you to soak up the beautiful Queensland lifestyle the garden area provides ample room for outside entertaining whilst enjoying the beautiful rear gardens - which the owner has painstakingly manicured to perfection.

An interior of the highest distinction with creative use of natural light and neutral tones and textures has resulted in an incomparable living environment for the entire family. The beautiful build on an easy-care cul-de-sac block, this exceptional design offers separate formal lounge/media room, a second air-conditioned living zone for family/meals spilling over to the well-proportioned under-roofline outdoor entertaining adjacent to spacious rear yard.

Outstanding family accommodation includes four bedrooms in total, a master's retreat with his and her walk-ins, double vanity, ensuite and built-in robes. A majestic, fully equipped, state-of-the-art kitchen with waterfall bench-top, soft close cabinetry


Upstairs Comprises:
• Huge king-sized master bedroom. Complete with air-conditioning, walk-in his and hers wardrobe and private en-suite
• An additional 3 generous double bedrooms with built in robes
• Modern 3-way bathroom
• Children’s or teenage retreat


Downstairs Comprises:

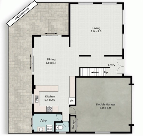
• Large open plan kitchen with double pantry. Well equipped with all new appliances including; electric oven and cooktop, rangehood and dishwasher
• An extra-large formal lounge and separate dining room with reverse cycle A/C
• A covered alfresco pavilion in the front and a covered outdoor area which wraps all the way down the side of the dwelling.
• Laundry
• WC
• Double lockup garage
• Garden Shed


Features

  • Airconditioning
  • Outdoor Entertainment Area
  • Fully Fenced
  • Floor Boards
  • Built in Robes
  • Dishwasher


We aim to look after your end-to-end construction, development and selling needs. Contact us for more information.

Get In Touch

1 Market St 36th Floor,
San Francisco, CA 94105
United States