Description

SOLD

PLACE TO BE AND ENJOY THE HEART OF NORTH EAST HAPPENING PLACE (MODBURY)


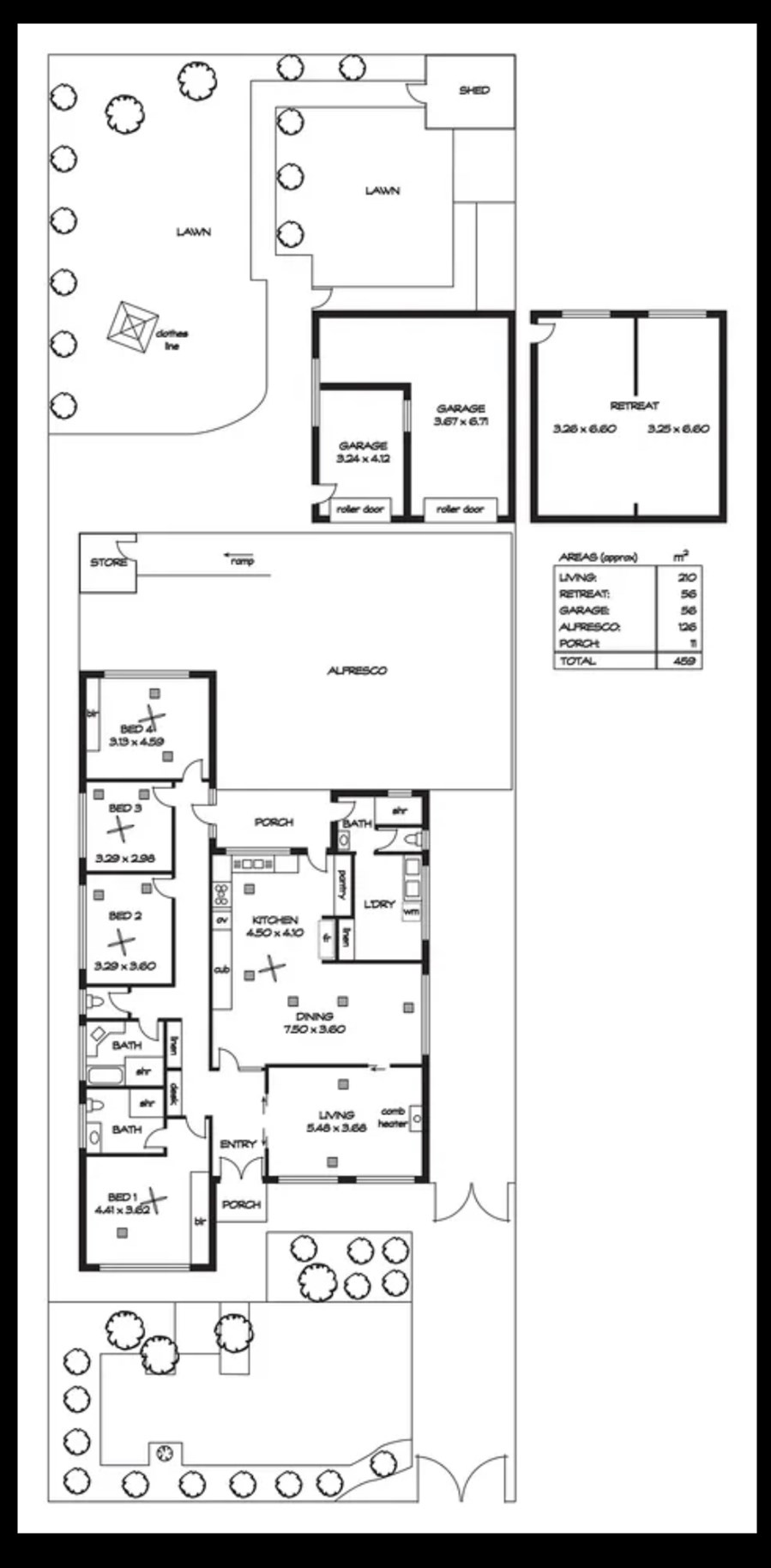
Beautiful 1980s constructed, solid cream brick home. Being offered in its original condition the home presents 4 main bedrooms, living room flowing across a traditional semi open plan layout, enhanced by generous garaging, alfresco and detached retreat/cellar which can be used as a grant flat for an extra income by doing bit of work on it.

Red-hot renovators and lovers of the traditional decor will certainly be interested in this positive project, so unlock the potential and get ready to rejuvenate this fabulous family home.

Security roller shutters to all main windows and lock-up gates to both sides of the home will ensure your privacy and peace of mind, while ducted gas heating and ducted evaporative cooling ensure your year-round comfort.

The home offers 2 separate living spaces. A large formal lounge provides a great spot to sit back and watch the telly, or step on through to a combined kitchen/dining room where there is so much space for your everyday relaxation.

The original solid timber kitchen offers so much bench and cupboard space, functional appliances, double sink with filtered water and a huge pantry.

All 4 bedrooms are of generous double proportion. All offering ceiling fans. Bedrooms 1 & 2 feature built-in robes. 3 spacious bathrooms will ensure everyone gets a morning shower.

A massive rear verandah and drive-through carport provides excellent alfresco and vehicle accommodation, enhanced by a solid brick double garage with retreat and cellar below.

All nestled on a massive 810m² allotment, ready to renovate, revitalise or move in and enjoy

Briefly:
* 1980s constructed solid brick home on massive 810m² allotment
* Original decor throughout a generous 4 bedroom design
* All bedrooms with ceiling fans
* Bedrooms 1 & 2 with built-in robes
* Spacious formal lounge
* Generous family/dining room
* Solid timber traditional kitchen with heaps of cupboard space
* Large utility room/laundry
* Security roller shutters all main windows
* Ducted evaporative cooling
* Ducted gas heating
* Extensive alfresco/verandah/carport
* Solid brick double garaging with secure roller doors
* Retreat/cellar below garage
* Handy storeroom and viewing platform above
* Alarm system installed
* Fabulous renovation or upgrade project
* 2.7m ceilings
* Potential for subdivision into 3 or 4 with the permission of council
* High Density Zone

Delightfully located within easy reach of all desirable amenities. A career Avenue Playground is just around the corner along with Berri Reserve. Civic Park & The Valley View Golf Course are just down the road along with numerous other sporting and social clubs.

Walk to Westfield Tea Tree Plaza for world class shopping, entertainment and express public transport to the city. Local public transport is nearby on Reservoir and Smart Roads.

Local unzoned primary schools include Modbury West School, Highbury Primary, Modbury School Preschool to Year 7 & Modbury South Primary School. Modbury High School is the zoned high school, just a short walk away. Quality private schools include Kildare College, Torrens Valley Christian School, St Pauls College and Burc College.

Zoning information is obtained from www.education.sa.gov.au Purchasers are responsible for ensuring by independent verification its accuracy, currency or completeness.


Property Details:
Council | Tea Tree Gully Council
Zone | TBC
Land | 810sqm(Approx.)
House | 459sqm(Approx.)
Built | 1980's
Council Rates | $TBC pa
Water | $TBC pq
ESL | $TBC pq


Features

  • Ducted Vacuuming
  • Remote Garage Control
  • Secure Parking
  • Courtyard
  • Outdoor Entertainment Area
  • Shed
  • Fully Fenced
  • Built in Robes
  • Dishwasher


We aim to look after your end-to-end construction, development and selling needs. Contact us for more information.

Get In Touch

1 Market St 36th Floor,
San Francisco, CA 94105
United States