Description

SOLD

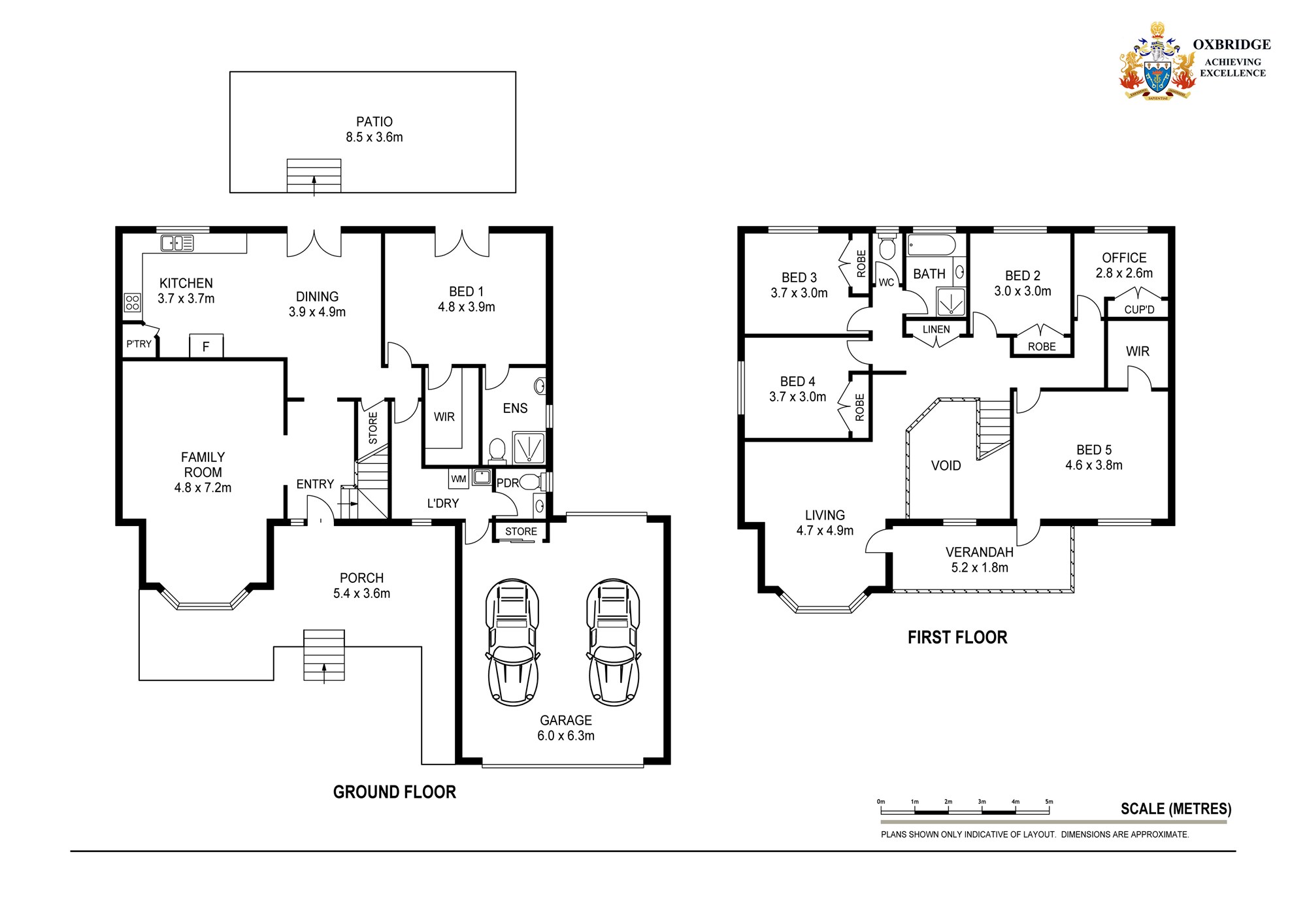
This large 5 Bedroom family home is situated within a quiet Rural Hamlet at Mt Mee with views to the coast! There is plenty of room with two living areas and additional Study upstairs. The main bedroom with ensuite is situated downstairs and has access to back patio area. There is a powder room downstairs for guests.

The other main bedroom is upstairs and has access to the front upstairs patio and has a walk-in wardrobe. The other three upstairs bedrooms have built-in wardrobes and white ‘plantation’ shutters. The large upstairs family area also has access to the top patio.

The kitchen has a new Smeg stand-alone gas oven and cooktop. This will be a delight for the chef of the family!

A large Free Standing Wood Heater has been installed in the downstairs family room and adds an ambience to this family home. The two bay windows on both levels overlook a beautiful vista and the tranquillity of the terraced ‘Italian Garden’.

There are plenty of break-out areas in this home!

The terraced gardens attract wildlife to the property, including Cockatoos, Rainbow lorikeets, Corellas, Pheasants, Doves, and Frogs. There is an Entertainment area at the back of the property, for those family get-togethers. Plenty of room for those fur babies. There is a chook run at the back of the property.

Mount Mee has its own micro-climate traditionally being 3 to 5 degrees cooler than the coast. Enjoy being part of a rural residential community, where people stop to say G'day. This Rural Hamlet is in close proximity to Dahmongah Lookout Park, with its sweeping vista of the Glass House Mountains. Mount Mee Primary School is 5 minutes down the road and a school bus picks up children in the street. The renowned Birches Restaurant is also a few minutes-drive away. Country markets at the community hall every Sunday morning and an active Historical Society, Garden Club and Tennis Club in the area. D’Aguilar National Park, featuring the Gantry, is a short drive away.

Woodford, Wamuran and Dayboro all have shopping facilities, and there is an express train service from Caboolture Station. The University of the Sunshine Coast (USC) has a campus at Petrie, next to the train station to the city.

Features include:
* 5 Bedrooms + Study
* 2.5 Bathrooms
* View to the Coast
* Large Stand-Alone Wood Heater
* 22 Solar Panels
* Steel Frame
* New Smeg stand-alone, gas oven currently being installed
* White Shutters in three bedroom and bathroom
* Two car garage with Internal Access and Remotes
* Drive-through access to back of property
* Concrete Driveway
* Substantial storage with under stairs W.I. cupboard and attic storage in the Roof
* Outlets for Air conditioning and Gas
* Grey Water System
* Rainwater Tank
* Garden Shed
* Back Yard fully Fenced
* Terraced Gardens
* Abundant Native Plants attracting Birds
* Plenty of lawn for the children and pets
* Chook Enclosure and Run

To arrange an inspection call Majella Holton, Oxbridge, on 0401 133 027



Features

  • Open Fire Place
  • Ensuite
  • Remote Garage Control
  • Balcony
  • Deck
  • Courtyard
  • Outdoor Entertainment Area
  • Shed
  • Study
  • Broadband Connection
  • Built in Robes
  • Rumpus Room
  • Additional Storage under Stairwell and in Roof Attic


We aim to look after your end-to-end construction, development and selling needs. Contact us for more information.

Get In Touch

1 Market St 36th Floor,
San Francisco, CA 94105
United States